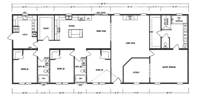
Introducing The Stagecoach! ❤️ This 4-bedroom, 3-bathroom home measures 32x76 and boasts:
- 2x6 exterior walls for added durability
- Architectural shingles for a premium look
- Finished drywall for a smooth finish
- Solid wood cabinet doors
- A cozy wood-burning fireplace
Special offer: $105,900
Down payment: $5,000
Financing and rent-to-own options are available.