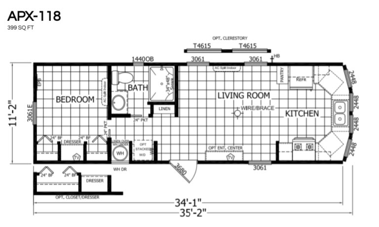
🏡 “Akbash” Park Model — 1 Bed / 1 Bath (399 sq ft)
Perfect RV-park tiny home with a front kitchen, ideal for lake lots and most RV spaces. Features a private bedroom with back deck, no loft, and ample hallway storage near the stackable washer/dryer hookup. Spacious living area with flexible furniture layout.
Price: $38,000
Down Payment: $3,000
Financing & Rent-to-Own Available